Multilocale in vendita

Parma, Via 9 novembre 1989 - Molinetto Palasport
€ 750.000
5 locali 5 locali
170 Mq 170 Mq
3 bagni 3 bagni

Multilocale in vendita

Parma, Via 9 novembre 1989 - Molinetto Palasport

Descrizione annuncio

PARMA MIA - CLASSE ENERGETICA A3

Proponiamo in vendita residenza unica nel suo genere, ideale per chi cerca spazi ampi, comfort moderni e un'atmosfera accogliente.

In un elegante contesto residenziale di sole nove unità abitative costruito nel 2019 a poca distanza dal Centro Città.

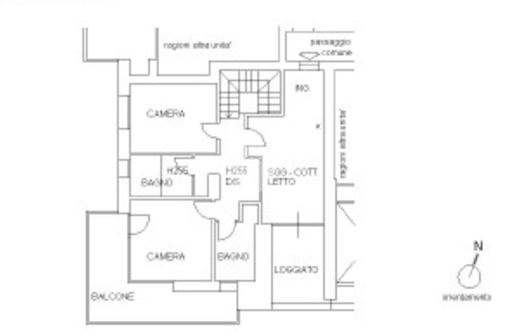
L'abitazione si sviluppa su due livelli - piano terra e primo piano - ed è circondata da un giardino di proprietà, perfetto per trascorrere momenti all'aperto in totale privacy.

Gli spazi interni sono stati progettati con grande cura ai dettagli: al piano terra troviamo una luminosa zona giorno con cucina abitabile, caratterizzata da finiture eleganti in gres effetto legno, che conferiscono calore e modernità all'ambiente.

Sempre al piano terra la proprietà ha realizzato un bagno finestrato ed una camera matrimoniale.

Salendo al primo piano, la zona notte è composta da tre camere da letto, tutte spaziose e ben illuminate. Due di queste sono matrimoniali, una delle quali servita da una loggia coperta, ideale per un momento di relax.

L'altra camera matrimoniale gode di un balcone privato.

Il pavimento in parquet in tutta la zona notte aggiunge raffinatezza e calore.

Completano la zona notte altri due bagni, entrambi moderni e ben rifiniti.

La casa è dotata di riscaldamento e raffrescamento a pavimento, sistema di deumidificazione, impianto d'allarme, zanzariere su tutte le finestre e impianto di irrigazione automatica per il giardino.

La proprietà include inoltre una cantina, facilmente accessibile.

Completa un garage Doppio di 40 mq per un costo di € 35.000,00

Questa casa è la soluzione ideale per famiglie che desiderano vivere in una nuova costruzione (finito di costruire solo 6 anni fa), efficiente e ben curato, in una zona tranquilla ma comoda a tutti i principali servizi.

Un immobile pronto da vivere, senza alcun lavoro da fare, che unisce la praticità della nuova costruzione al piacere di spazi ben distribuiti e materiali di qualità.

Contatta Giulia al 3806315089 per maggiori informazioni o per organizzare una visita. Saremo felici di accompagnarti a scoprire questa splendida opportunità.

Mostra tutto

Nelle vicinanze

Trasporto pubblico Trasporto pubblico
Linea 5
Linea 5
270 m
Strada Farnese Villa Capello
Strada Farnese Villa Capello
510 m
Ricariche auto elettriche Ricariche auto elettriche
Emobitaly Crédit Agricole Green Life
530 m
LIDL Parma Via La Spezia
890 m
Eneldrive Ospedale Maggiore
1,9 Km
Eneldrive Vittoria
2,0 Km
IrenGo Istituto Comprensivo Parmigianino
2,1 Km
Scuole Scuole
Forma Futuro
410 m
Scuole
1,0 Km
Scuola dell'Infanzia "La Locomotiva"
1,0 Km
Scuola primaria "Rodari"
1,2 Km
Scuola Secondaria primo grado "Salvo Acquisto"
1,3 Km
Farmacia Farmacia
Farmacia Cavagnari
760 m
Farmacia Ponte Dattaro
1,3 Km
Farmacia Volturno
1,4 Km
Parafarmacia Ducale
1,9 Km
Farmacia
2,1 Km
Ospedali Ospedali
Piccole Figlie Hospital
1,4 Km
Pronto Soccorso
1,7 Km
Guardia Medica
1,8 Km
Punto Bianco
1,8 Km
Casa della Salute Pintor-Molinetto
1,8 Km
Supermercati Supermercati
Brico OK
200 m
Eurospin
310 m
Sigma
830 m
Lidl
890 m
Panorama
1,1 Km
Negozi Negozi
Negozi
1,4 Km
Knitting
2,0 Km
Panetteria dei borghi
2,0 Km
Alimentari Submarinos
2,0 Km
Panetteria Polizzotto
2,0 Km
Bar Bar
Cubo
630 m
Bar
770 m
Gastronomico
1,3 Km
Bar Merlino
1,5 Km
Bar Campioni
1,6 Km
Ristoranti Ristoranti
Ristoranti
360 m
Pizzeria La Vela
860 m
Circolo Dipendenti Sanità
930 m
I Tri Siochètt
1,1 Km
Il Polipo Marino
1,3 Km
Mostra tutto

Caratteristiche

Rif.:
61159038
Piano:
Terra di 4 con ascensore
Totale piani:
4
Box:
2
Terrazzi:
2
Camere da letto:
4
Mostra tutto
Prezzo Prezzo
€ 750.000
Prezzo box Prezzo box
€ 35.000
Rata mutuo Rata mutuo
€ 3.502 / mese
Spese annue Spese annue
€ 3.500
Proponi il tuo prezzoProponi il tuo prezzo

Classe Energetica

A3
A3
A3
A3
A3
A3
A3
A3
A3
EP globale non rinnovabile:
47.73 kW h/m² anno
EP globale rinnovabile:
47.73 kW h/m² anno
EP invernale del fabbricato:
EP estiva del fabbricato:
Anno di costruzione:
2019
Riscaldamento:
Autonomo
Tipo impianto:
A pavimento
Tipo alimentazione:
Metano

Ti interessa visionare l'immobile?

Fissa un appuntamento  Fissa un appuntamento

Richiedi informazioni

Clicca su Leggi per aprire l'informativa
* Questi campi sono obbligatori

Calcola il tuo mutuo

Semplice e senza impegno
Anticipo

( % )
Mutuo

( % )

pochi semplici passi

inserisci i tuoi dati
Questionario completato
Grazie per aver richiesto un appuntamento senza impegno con un nostro Consulente del Credito e Assicurativo.

Hai inserito correttamente tutti i dati necessari e a breve riceverai una e-mail con un link da convalidare per inviare i tuoi dati.
Affiliato
Bormioli Living Srl
Via La Spezia, 5/C 43125 Parma (PR)

Il nostro staff


  • Diana De Pasquale
    Responsabile

  • Elisa Masini
    Responsabile

  • Giulia Maria Bormioli
    Affiliata
Via La Spezia, 5/C 43125 Parma (PR)
Zona: Molinetto-Parma Mia-Vigheffio-Q.rePellico-Q.re Isola-Via Varese-Q.re Manara
Mostra su mappa
Orari: Dal Lunedì al Venerdì dalle ore 9.00 -13.00 e dalle 15.00-19.00 Sabato dalle ore 9.00 alle ore 13.00
Affiliato
Bormioli Living Srl
Via La Spezia, 5/C 43125 Parma (PR)

2026 Tecnocasa Franchising S.p.A. - P. IVA 08365160152 - Via Monte Bianco 60/A 20089 Rozzano (MI). Ogni agenzia ha un proprio titolare ed è autonoma. Privacy policy | Policy utilizzo | Cookie policy